South & 20 at Cartersville, GA

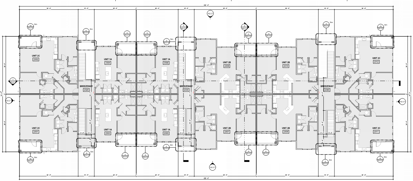
  • South & 20 is a multi-family complex located in Cartersville, GA. It contains 288 unit with 7 types of units and 3 adapted to be accessible. Three buildings are 3-story, and two other buildings are 3/4-stories splits. This is a type 5A constructions for the apartment buildings and 5B for the amenities.

Credit to Corcoran Ota Group, Claudia Rateb, Sam Walden, Rolando Joseph, Grace Kunst, Judy Warner-Babb, Dean Ota, and Michael Corcoran.

Role: Project Manager

Responsibilities:

  • Under supervision of Principals, designed units and facade through SD and DD.

  • Modeled in full Revit software project for production.

  • Set tasks for team to complete set of drawings for acquiring Permit.

  • Organize permit documents.

  • Coordinate and review with consultants.

  • Trained for Construction administration under the guidance of Senior Project Manager and Quality Control Manager. Performed VE exercises.

  • Attended OAC meetings and completed field reports